Defro OPTIMA KOMFORT EKO 12 kotel na uhlí (QOKE12)

Defro OPTIMA KOMFORT EKO 12 kotel na uhlí (QOKE12)
Výrobce: DEFRO
Katalogové číslo: DF-QOKE12

Kotel na uhlí Defro OPTIMA KOMFORT EKO

Kotel Defro OPTIMA KOMFORT EKO je moderní a efektivní řešení pro vytápění domácností uhlím s ručním přikládáním. Vyniká vysokou účinností, ekologickým provozem a robustní konstrukcí. Díky široké škále výkonů si snadno vyberete ideální model pro vaše potřeby.

Výkon a účinnost

Kotle OPTIMA KOMFORT EKO jsou dostupné v následujících výkonnostních variantách:

  • 12 kW
  • 17 kW
  • 22 kW
  • 28 kW
  • 35 kW

S účinností v rozmezí od 89,8 % do 91,4 % splňují kotle nejvyšší 5. emisní třídu (Ekodesign), což šetří nejen životní prostředí, ale i vaše finanční prostředky za palivo.

Konstrukce a technologie

Tepelný výměník kotle je vyroben z vysoce kvalitní speciální certifikované oceli, která zaručuje dlouhou životnost a spolehlivý provoz. Prostorná přikládací komora usnadňuje obsluhu a snižuje frekvenci přikládání.

Pro dosažení optimálního spalování je kotel vybaven:

  • Keramickými katalyzátory, které zvyšují účinnost a zajišťují vysokou funkčnost spalovacího procesu.
  • Přesným a citlivým přívodem sekundárního vzduchu.

Instalace a regulace

Kotel OPTIMA KOMFORT EKO je uzpůsoben pro instalaci v uzavřeném systému a je připraven pro montáž termostatického regulátoru tahu, který umožňuje automatickou regulaci výkonu kotle a udržování požadované teploty.

Záruka

3 roky záruka na těsnost tepelného výměníku.

Kotel na uhlí Defro OPTIMA KOMFORT EKO Kotel Defro OPTIMA KOMFORT EKO je moderní a efektivní řešení pro vytápění domácností uhlím s ručním přikládáním.
Záruka
60 měsíců
Skladem
56 857,00 Kč s DPH / ks
56857.00
Název vlastnosti Hodnota
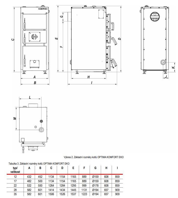
Objem vody v kotli (l) 63
Průměr kouřovodu (mm) 160
Hmotnost (kg) 275
Hloubka (mm) 859
Šířka (mm) 452
Výška (mm) 1165
Palivo černé uhlí
Způsob přísunu paliva ruční
Energetická třída topení B
Emisní třída NOx 5
Účinnost spalování (%) 91
Výkon (kW) 12

Defro OPTIMA KOMFORT EKO 12 kotel na uhlí (QOKE12)

phone +420 704 458 187